Proyectos e infografías 3D en Zaragoza
Proyectos de arquitectura e infografías 3d
Con el fin de brindar una experiencia gratificante a cada uno de nuestros clientes, en Reformas JRC hacemos uso de todas las herramientas que nos ofrece la modernidad. La realización de proyectos e infografías 3D en Zaragoza es uno de los elementos que mayor orgullo nos genera y que mayor satisfacción produce en nuestros clientes.
Esta tecnología 3D nos permite generar una imagen previa de los trabajos que realizaremos en el futuro. Es una herramienta de vanguardia utilizada en arquitectura y decoración de interiores, capaz de plasmar de manera gráfica y tridimensional las diferentes modificaciones a realizar en el espacio deseado.
Nuestra empresa de reformas en Zaragoza se caracteriza por entregar un servicio de excelencia a todos sus clientes, ofreciendo soluciones específicas y de gran calidad para todos tus proyectos. Actuamos con rapidez y eficiencia, obteniendo resultados que se ajusten a las expectativas y preferencias que cada persona posee.
Contamos con un equipo de profesionales altamente cualificados para realizar proyectos e infografías 3D, quienes atenderán de manera oportuna cualquier necesidad que tengas en tu hogar, comunidad o local comercial.
Ellos se encuentran en un continuo proceso de formación, aprendiendo e interiorizando las últimas tendencias en arquitectura e interiorismo. Esto nos permite entregarte soluciones vanguardistas y que se ajusten a los requisitos de la vida moderna.
Nuestro servicio se encuentra basado en la comunicación y en el trato cercano con nuestros clientes. Gracias a esto podrás formar parte activa de las diferentes etapas de la obra y realizar todas las observaciones que estimes convenientes.
En Reformas Zaragoza JRC creemos que uno de los aspectos de mayor importancia para obtener los resultados esperados se encuentra en la elección de materiales. Nuestra larga trayectoria nos permite trabajar con marcas de gran renombre y prestigio, ofreciéndote la mejor relación entre calidad y precio del mercado.
Nuestros proyectos e infografías 3D en Zaragoza incluyen opciones de financiación que te ayudarán a darle forma a tus ideas sin que el dinero sea un impedimento. Sabemos que invertir en este tipo de trabajos puede desestabilizar tu economía, es por esto que te ofrecemos todas las facilidades posibles.
Junto a nuestro equipo de profesionales podrás olvidarte de realizar los trámites necesarios para la ejecución de las obras. Nosotros acudiremos oportunamente a las instituciones correspondientes para solicitar los permisos y licencias que demandan estos procesos.
Si quienes disfrutar de nuestros proyectos e infografías 3D , no dudes en contactar con nosotros y descubrir las ventajas de trabajar junto a una empresa consolidada.
Proyectos e infografías 3d
Reformas Zaragoza JRC ofrece un servicio completo de asistencia de realización de infografías e imágenes 3D.
En esta página se muestran algunos de los trabajos ya realizados con nuestros clientes.
Se ofrece la posibilidad de realización de las imágenes antes de la realización de la obra, sin ningún tipo de compromiso, conjuntamente con el presupuesto y la realización de los planos y las medidas pertinentes, para poder corroborar la apariencia del resultado deseado.
A su vez se ofrece la posibilidad de realización de renderizados 3D de trabajo mientras se está realizando la obra. De esta manera se podrá verificar cada detalle para la obtención de un resultado perfectamente acorde y adecuado a las necesidades del cliente.
Creemos que es importante hacer hincapié en la buena realización de este servicio, ya que ayuda mucho a la obtención de un buen resultado en las decisiones de diseño. A su vez es una herramienta muy útil de investigación para poder determinar las posibilidades existentes de distribución y desarrollo de los elementos de decoración a utilizar.
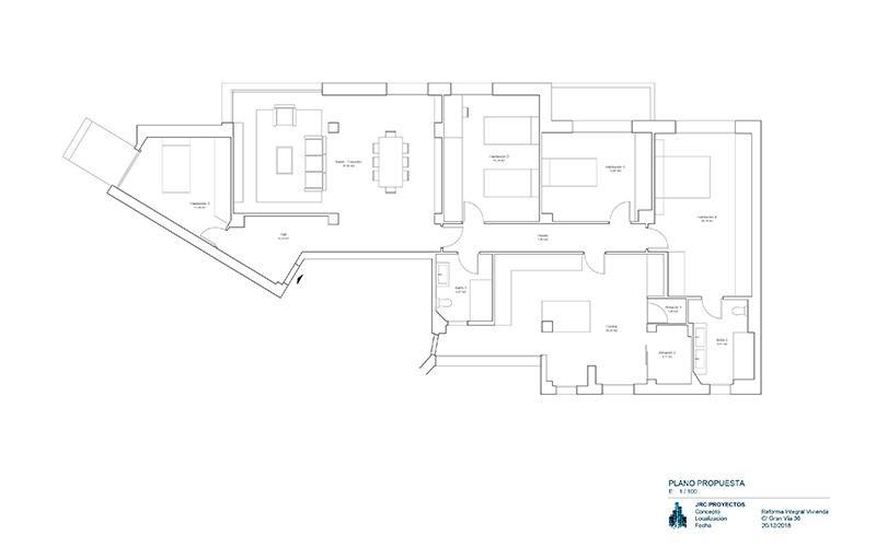
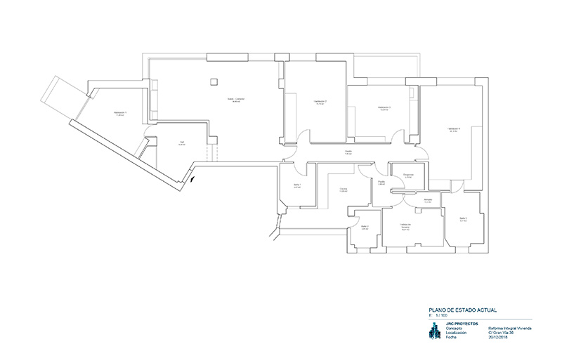
Planos y Mediciones
Ofrecemos un servicio de levantamiento de planos, así como la realización del diseño de posibles propuestas de reforma.
Se ofrece un estudio, basado en las medidas reales, para la realización de una correcta distribución y diseño de las estancias, siempre ligado a las necesidades y gustos del cliente.
Se realiza además distintos planos explicativos relativos al presupuesto, de manera que se muestre más claramente todas las ejecuciones a realizar en la obra.
Los planos más comunes realizados son los relativos a las demoliciones, los acabados, la electricidad, la nueva tabiquería, así como los planos de antes y de después de la reforma.
Se ofrecerá también un servicio de dibujo y delineado de los elementos característicos que requieran un estudio específico (estructuras, pérgolas, elementos de diseño, etc.)
Contacta con Nosotros
Si estás interesado en realizar una reforma integral pero no sabes cómo empezar, completa los campos que aparecen a continuación y un arquitecto de nuestro equipo se pondrá en contacto contigo para asesorarte y guiarte sobre presupuesto, plazos y proceso.
Escríbenos
Llámanos
Ven a visitarnos
Cuéntanos tu proyecto
sin compromiso
Te asesoraremos y guiaremos para dar los primeros sobre el proyecto de transformaciónde tu nuevo hogar.











